Search

Leave a Message

Thank you for your message. We will be in touch with you shortly.

Explore Our Properties

Property Description

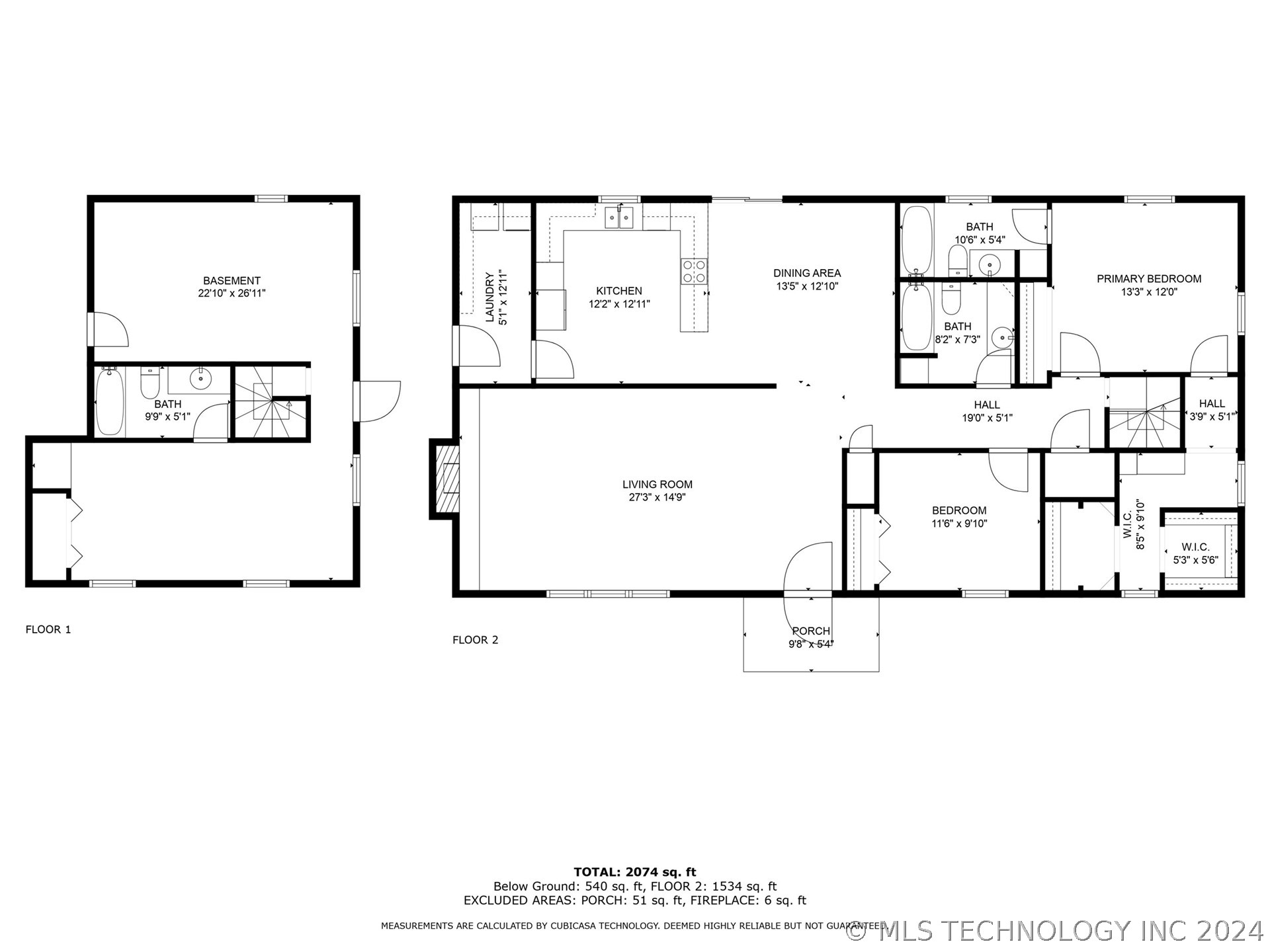
Check out this beautiful 3 bed 3 bath home that sits on 10 acres MOL. This property features a huge 30 X 60 shop building with water and electric installed, and a 30 X 40 carport tall enough to park your RV and boat. The property shares a nice size pond with the adjoining property owner. Only minutes from Ada but with seclusion from your neighbors. The acreage has 50% open with plenty of woods for wildlife to live. Come check out this property today!

Overview

Property Status
Sold
Lot Size
10 Acres
MLS ID
2418650
Property Type
Residential
Year Built
1981

Features & Amenities

Total Area
2,028 Sq.Ft.
Architecture Styles
Ranch
Stories
2
Garage Spaces
2.0
Water Source
Rural
Utilites
Phone Available, Water Available
Pool
None
Roof
Asphalt, Fiberglass
Lot Features
Farm, Pond, Ranch
Parking
Attached, Boat, Garage, RV Access/Parking, Garage Faces Side, Workshop in Garage
Heat Type
Gas, Heat Pump
Air Conditioning
Central Air, 2 Units
Laundry Room
Gas Dryer Hookup
Fireplace
Wood Burning
Appliances
Built-In Oven, Cooktop, Dishwasher, Oven, Range, Electric Oven, Gas Water Heater
Other Interior Features
High Ceilings, Solid Surface Counters, Ceiling Fan(s)
Sewer
Septic Tank
Substructure
Basement, Slab
Security Features
Safe Room Interior, Smoke Detector(s)
Elementary School
Vanoss
High School
Vanoss
School District
Vanoss - Sch Dist (M11)
Sales Price
$340,000
Real Estate Tax
$1,579/yr

Downloads

8380 County Road 3510

Schedule a Tour

We would love to help you see this beautiful home! As a full-service brokerage, we can help you tour. Please submit an offer, and answer questions about the buying process.

Thank you

for your interest in 8380 County Road 3510, Ada, OK 74820

I'm Interested In

8380 County Road 3510

or
  • CallDan Sweeney

    License #149347

    (580) 399-1918
  • 8380 County Road 3510
    Navigate

    Browse Our Active Listings

    • 1930 Arlington Street For Sale

      $1,400,000

      1930 Arlington Street, Ada, OK 74820

      • 2 Baths
      • 11,444 Sq.Ft.
    • 10815 State Hwy 19 For Sale

      $950,000

      10815 State Hwy 19, Ada, OK 74820

      • 2 Beds
      • 2 Baths
      • 600 Sq.Ft.
    • 16712 County Road 1580 For Sale

      $830,000

      16712 County Road 1580, Ada, OK 74820

      • 4 Beds
      • 5 Baths
      • 3,444 Sq.Ft.
    • 36118 E 114 Pending

      $799,000

      36118 E 114, Seminole, OK 74868

    • 22841 County Road 3620 For Sale

      $675,000

      22841 County Road 3620, Stonewall, OK 74871

      • 4 Beds
      • 2 Baths
      • 2,768 Sq.Ft.
    • 36690 Highway 270 For Sale

      $619,000

      36690 Highway 270, Wewoka, OK 74884

      • 3 Beds
      • 2 Baths
      • 1,800 Sq.Ft.
    • 16200 County Road 3635 Pending

      $599,900

      16200 County Road 3635, Stonewall, OK 74871

      • 4 Beds
      • 4 Baths
      • 3,498 Sq.Ft.
    • 1928 Arlington For Sale

      $595,000

      1928 Arlington, Ada, OK 74820

      • 3 Beds
      • 2 Baths
      • 1,500 Sq.Ft.
    • 3377 N 368 Pending

      $499,000

      3377 N 368, Holdenville, OK 74848

      • 4 Beds
      • 4 Baths
      • 3,330 Sq.Ft.
    • Arlington For Sale

      $495,000

      Arlington, Ada, OK 74820

    • 7468 E 147 Road For Sale

      $460,000

      7468 E 147 Road, Allen, OK 74825

      • 4 Beds
      • 3 Baths
      • 2,848 Sq.Ft.
    • 7685 Highway 270 For Sale

      $435,000

      7685 Highway 270, Holdenville, OK 74848

      • 4 Beds
      • 2 Baths
      • 2,077 Sq.Ft.
    • 17520 County Road 3539 Pending

      $410,000

      17520 County Road 3539, Ada, OK 74820

      • 4 Beds
      • 3 Baths
      • 2,000 Sq.Ft.
    • 11908 County Road 3513 Loop Pending

      $394,000

      11908 County Road 3513 Loop, Ada, OK 74820

      • 4 Beds
      • 2 Baths
      • 2,159 Sq.Ft.
    • 11767 Xander For Sale

      $359,000

      11767 Xander, Kingston, OK 73439

      • 3 Beds
      • 2 Baths
      • 1,652 Sq.Ft.
    • 0000 State Hwy 9 Pending

      $335,000

      0000 State Hwy 9, Earlsboro, OK 74840

      • 2 Beds
      • 1 Bath
      • 1,008 Sq.Ft.
    • 1918 E 15th For Sale

      $334,000

      1918 E 15th, Ada, OK 74820

      • 3 Beds
      • 2 Baths
      • 2,120 Sq.Ft.
    • 16924 County Road 1517 For Sale

      $315,000

      16924 County Road 1517, Ada, OK 74820

      • 3 Beds
      • 2 Baths
      • 1,471 Sq.Ft.
    • 705 D Street Sold

      $315,000

      705 D Street, Calvin, OK 74531

      • 3 Beds
      • 2 Baths
      • 1,680 Sq.Ft.
    • 7766 E 135 Pending

      $309,500

      7766 E 135, Holdenville, OK 74848

      • 3 Beds
      • 1 Bath
      • 1,040 Sq.Ft.
    • 3377 County Road 3790 For Sale

      $299,000

      3377 County Road 3790, Holdenville, OK 74848

      • 3 Beds
      • 3 Baths
      • 2,534 Sq.Ft.
    • 5850 S Highway 3 For Sale

      $299,000

      5850 S Highway 3, Byars, OK 74831

      • 5,460 Sq.Ft.
    • 7180 Country Hollow For Sale

      $285,000

      7180 Country Hollow, Holdenville, OK 74848

      • 3 Beds
      • 3 Baths
      • 2,010 Sq.Ft.
    • County Road 3570 For Sale

      $279,000

      Private Address

    • 3229 N 372 Sold

      $275,000

      3229 N 372, Holdenville, OK 74848

      • 3 Beds
      • 2 Baths
      • 2,054 Sq.Ft.
    • 625 Eastern Hills Road Pending

      $254,000

      625 Eastern Hills Road, Holdenville, OK 74848

      • 3 Beds
      • 2 Baths
      • 1,767 Sq.Ft.
    • 7655 E 137 For Sale

      $237,660

      7655 E 137, Holdenville, OK 74848

    • 106 N Broadway For Sale

      $230,000

      106 N Broadway, Holdenville, OK 74848

      • 2,100 Sq.Ft.
    • 2923 Ahloso Pending

      $229,000

      2923 Ahloso, Ada, OK 74843

      • 3 Beds
      • 2 Baths
      • 1,512 Sq.Ft.
    • 821 Cardinal Street Pending

      $212,000

      821 Cardinal Street, Ada, OK 74820

      • 3 Beds
      • 2 Baths
      • 1,355 Sq.Ft.
    • 1030 W 13th Pending

      $205,000

      1030 W 13th, Ada, OK 74820

      • 4 Beds
      • 2 Baths
      • 1,627 Sq.Ft.
    • 15912 County Road 1592 For Sale

      $199,000

      15912 County Road 1592, Ada, OK 74820

      • 3 Beds
      • 2 Baths
      • 1,469 Sq.Ft.
    • 401 Diamond Sold

      $199,000

      401 Diamond, Holdenville, OK 74848

      • 4 Beds
      • 2 Baths
      • 2,495 Sq.Ft.
    • 219 Berton For Sale

      $195,000

      219 Berton, Holdenville, OK 74848

      • 3 Beds
      • 2 Baths
      • 1,840 Sq.Ft.
    • 16 Rondel For Sale

      $186,500

      16 Rondel, Wewoka, OK 74884

      • 3 Beds
      • 2 Baths
      • 1,779 Sq.Ft.
    • 520 N Crownpoint Drive For Sale

      $179,900

      520 N Crownpoint Drive, Ada, OK 74820

      • 2 Beds
      • 2 Baths
      • 1,315 Sq.Ft.
    • 508 E Paul For Sale

      $178,000

      508 E Paul, Allen, OK 74825

      • 3 Beds
      • 1 Bath
      • 1,325 Sq.Ft.
    • 10214 Golden Avenue For Sale

      $170,000

      10214 Golden Avenue, Byars, OK 74831

      • 3 Beds
      • 1 Bath
      • 1,064 Sq.Ft.
    • 924 N Burns Pending

      $159,000

      924 N Burns, Holdenville, OK 74848

      • 4 Beds
      • 2 Baths
      • 1,753 Sq.Ft.
    • 208 Lakeside Sold

      $149,900

      208 Lakeside, Holdenville, OK 74848

      • 3 Beds
      • 2 Baths
      • 1,186 Sq.Ft.
    • County Road 1470 For Sale

      $149,000

      County Road 1470, Allen, OK 74825

    • 224 Lakeview Sold

      $147,000

      224 Lakeview, Holdenville, OK 74848

      • 4 Beds
      • 2 Baths
      • 1,352 Sq.Ft.
    • 524 N Kelker Street Pending

      $142,000

      524 N Kelker Street, Holdenville, OK 74848

      • 3 Beds
      • 2 Baths
      • 1,616 Sq.Ft.
    • Lona Avenue For Sale

      $139,000

      Lona Avenue, Seminole, OK 74868

    • 500 S Hinckley For Sale

      $136,500

      500 S Hinckley, Holdenville, OK 74848

      • 2 Beds
      • 1 Bath
      • 2,896 Sq.Ft.
    • 406 Diamond For Sale

      $135,000

      406 Diamond, Holdenville, OK 74848

      • 2 Beds
      • 1 Bath
      • 1,935 Sq.Ft.
    • 413 State Highway 1E For Sale

      $129,500

      413 State Highway 1E, Allen, OK 74825

      • 3 Beds
      • 2 Baths
      • 1,056 Sq.Ft.
    • 2648 N 382 C Pending

      $129,000

      2648 N 382 C, Holdenville, OK 74883

      • 3 Beds
      • 2 Baths
      • 1,568 Sq.Ft.
    • 500 W 16 Street For Sale

      $124,900

      500 W 16 Street, Ada, OK 74820

      • 3 Beds
      • 2 Baths
      • 1,510 Sq.Ft.
    • 800 E Highway For Sale

      $120,000

      800 E Highway, Holdenville, OK 74848

      • 5,207 Sq.Ft.
    View All Properties

    Follow Us On Instagram